Servizi integrati di assistenza e gestione diretta o in outsourcing di patrimoni immobiliari
Servizi integrati di assistenza e gestione diretta o in outsourcing di patrimoni immobiliari
Facility Management con servizi integrati di assistenza e gestione diretta di patrimoni immobiliari civili, commerciali, socio-assistenziali, industriali, sportivi.
Due diligence e servizi di ispezione, verifica e valutazione immobiliare in accordo con gli standard internazionali EVS ed IVS 2020 come Property Advisor.
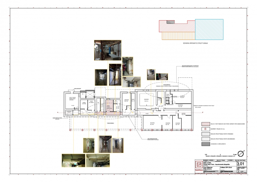
Due Diligence e Verifica di Vulnerabilità sismica
